inlineinlinehttps://www.inline.pt/portfolioRequalificação do Edifício dos Antigos Paços de Concelho em Celorico de Bastohttps://www.inline.pt/single-post/2019/12/10/Requalifica%C3%A7%C3%A3o-do-antigo-edif%C3%ADcio-dos-Pa%C3%A7os-do-Concelho-em-Celorico-de-Bastohttps://www.inline.pt/single-post/2019/12/10/Requalifica%C3%A7%C3%A3o-do-antigo-edif%C3%ADcio-dos-Pa%C3%A7os-do-Concelho-em-Celorico-de-BastoTue, 10 Dec 2019 16:26:22 +0000
DESCRIÇÃO
E
laboração do projeto de Fundações e Estrutura para a Requalificação do Edifício dos Antigos Paços de Concelho
O edifício existente era constituído por uma cave e 3 pisos acima da cota de soleira. As fachadas foram mantidas e a cave ampliada.
Em termos de intervenção estrutural, o núcleo de divisórias e pavimentos do edifício foi demolido, mantendo-se as paredes de granito estruturais que mantêm a sua função estrutural após a reabilitação.
Para a estrutura de pavimentos e paredes estruturais foram usados perfis metálicos do tipo laminado e do tipo enformado a frio (sistema tipo LSF).
Para o vigamento principal dos pisos usaram-se perfis laminados do tipo HEA e para o vigamento secundário utilizaram-se perfis em C enformados a frio sobre os quais apoiam os pavimentos em madeira.
As paredes de alvenaria de pedra existentes, em granito, foram reforçadas interiormente pela aplicação de um reboco estrutural e no coroamento das alvenarias existentes foram executados lintéis de coroamento em betão armado.
CLIENTE - Câmara Municipal de Celorico de Bastos
LOCALIZAÇÃO - Celorico de Bastos
ARQUITETURA - Arq. Nuno Mendes
ANO PROJETO - 2017
CUSTO - 751.817,36 €
ENTIDADE EXECUTANTE - Portela & Rodrigues, Lda
]]>
Mercado Municipal de Foz CôaNChttps://www.inline.pt/single-post/2019/11/18/Noticia-Xhttps://www.inline.pt/single-post/2019/11/18/Noticia-XTue, 19 Nov 2019 18:13:15 +0000
DESCRIÇÃO
Elaboração dos projetos de engenharia para a construção do Mercado Municipal de Foz Côa, nomeadamente:
- Fundações e Estrutura;
- Segurança Contra Incêndios em Edifícios;
- Condicionamento Acústico;
- Arranjos Exteriores;
- PPGR;
- Plano de Segurança e Saúde.
O material escolhido, para os elementos principais da estrutura, foi o betão armado.
CLIENTE - Câmara Municipal de Foz Côa
LOCALIZAÇÃO - Foz Côa
ARQUITETURA - ADVD atelier - arquitectura, design e engenharia
ÁREA DE CONSTRUÇÃO - 1295,59 m²
ANO PROJETO - 2018
CUSTO - 2.254.990,33 €
]]>
Superfície Comercial Aldi - Figueira da Foz]]>https://www.inline.pt/single-post/2018/11/30/Superf%C3%ADcie-Comercial-Aldi---Figueira-da-Fozhttps://www.inline.pt/single-post/2018/11/30/Superf%C3%ADcie-Comercial-Aldi---Figueira-da-FozFri, 30 Nov 2018 18:13:51 +0000
A Inline Engenharia desenvolveu os projetos de especialidades de Engenharia Civil da Superficie Comercial Aldi da Figueira da Foz nomeadamente:
- Rede Viária
- Estruturas
- Rede de Águas
- Rede de Esgotos
- Rede de Pluviais;
- Condicionamento Acustico;
- Plano de Segurança e Saúde;
- PPGR.
]]>
Hotel Pestana **** - Rua das Flores - Porto]]>Inline Engenhariahttps://www.inline.pt/single-post/2018/03/07/Unidade-Hoteleira-4---Portohttps://www.inline.pt/single-post/2018/03/07/Unidade-Hoteleira-4---PortoWed, 07 Mar 2018 00:37:34 +0000
Projectos de especialidades referentes à reabilitação de uma edificação existente, para adaptação a uma unidade hoteleira de quatro estrelas com capacidade para 87 quartos, no coração da cidade do Porto - Rua das Flores.
Projecto realizados:
- Contenção de Fachada;
- Contenção Periférica;
- Fundações e Estrutura;
- Redes Hidráulicas;
- Rede de Abastecimento de Gás;
- Segurança Contra Incêndios em Edifícios;
- Projecto de Condicionamento Acústico;
- AVAC;
- RECS;
- Instalações Elétricas;
- ITED;
- SADI;
- Intrusão e videovigilância;
]]>
Unidade Privada de Diálise]]>Inline Engenhariahttps://www.inline.pt/single-post/2017/10/19/Unidade-Privada-de-Di%C3%A1lisehttps://www.inline.pt/single-post/2017/10/19/Unidade-Privada-de-Di%C3%A1liseThu, 19 Oct 2017 16:18:52 +0000
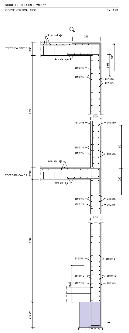
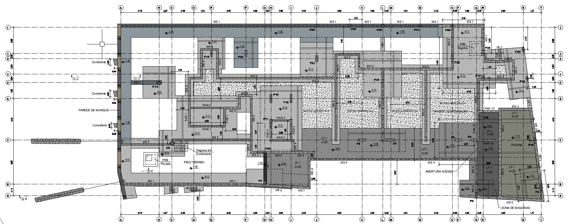
Unidade Privada de Diálise. Estrutura em betão armado, incluindo pré-esforço, fundações indiretas por estacas.
]]>
Intersecção Urbana com Recurso a Rotunda - Oliveira de Azeméis]]>Inline Engenhariahttps://www.inline.pt/single-post/2017/10/19/Intersec%C3%A7%C3%A3o-Urbana-com-Recurso-a-Rotundahttps://www.inline.pt/single-post/2017/10/19/Intersec%C3%A7%C3%A3o-Urbana-com-Recurso-a-RotundaThu, 19 Oct 2017 15:39:38 +0000
Projeto de execução de uma intersecção urbana com recurso rotunda.
]]>
Edifício de habitação coletiva - CoimbraInline Engenhariahttps://www.inline.pt/single-post/2017/07/28/EDIF%C3%8DCIO-DE-HABITA%C3%87%C3%83O-COLETIVA---COIMBRAhttps://www.inline.pt/single-post/2017/07/28/EDIF%C3%8DCIO-DE-HABITA%C3%87%C3%83O-COLETIVA---COIMBRAFri, 28 Jul 2017 14:29:31 +0000
Edifício de habitação coletiva no coração de Coimbra. Estrutura em betão armado, fundações indiretas por estacas e contenção periférica.
]]>
Ensaio de carga estático em Laje]]>https://www.inline.pt/single-post/2017/03/08/Ensaio-de-carga-est%C3%A1tico-em-Lajehttps://www.inline.pt/single-post/2017/03/08/Ensaio-de-carga-est%C3%A1tico-em-LajeWed, 08 Mar 2017 20:00:00 +0000
Ensaio de carga estático em laje de um edifício de serviços.
Coimbra - 8 de Março de 2017
Veja o vídeo abaixo onde compilámos o ensaio de carga realizado em cerca de 1.20 minutos de vídeo.